-
Koszyk jest pusty
-
x
-
Koszyk jest pusty
-
x
-
Wpisz KOD: PROMO - 10% Radaway Essenza New Black PDD drzwi prysznicowe 90 cm lewe czarny mat/szkło przezroczyste 1385001-54-01L
| Cena przesyłki | 0 |
| Dostępność |
do tygodnia
|
| Kod kreskowy | |
| EAN |
Zamówienie telefoniczne: 783433733
| Zostaw telefon |
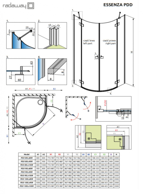
- część lewa
- do szerokości brodzika 90 cm
- wymiar do osi szyby Y1: 86,7 - 88,2 cm
- wysokość H: 200 cm
- szkło przezroczyste hartowane o grubości 6 mm
- powłoka ochronna Easy Clean w standardzie
- kolor profili czarny mat
- system mocowania do ściany za pomocą profili umożliwiających niwelację krzywizny ściany
- zawiasy zostały zlicowane z taflą szkła – jednolita powierzchnia ułatwia czyszczenie kabiny
- mechanizm unoszenia i opuszczania drzwi zapobiega niszczeniu uszczelki i gwarantuje cichą i bezawaryjną pracę
- listwa magnetyczna zapewnia szczelność kabiny
- elastomerowe uszczelki odporne na zmianę temperatury i wilgotności
- możliwość montażu bez listwy progowej (w takim przypadku należy dokupić odpowiednią uszczelkę 007-106700100)
Zdjęcie przedstawia kompletną kabinę składającą się z części lewej oraz prawej. Cena dotyczy części lewej. Kabinę można kompletować zamawiając część lewą oraz prawą o różnych wymiarach.
| Marka | Radaway |
| Seria | Essenza New Black PDD |
| Szerokość | 90 cm |
| Wysokość | 200 cm |
| Rodzaj | inne |
| Typ | uchylne |
| Wypełnienie | szkło przezroczyste |
| Powłoka ochronna | tak |
| Kolor profili | czarny |
| Wykończenie profili | mat |
| Mocowanie | lewe |
| Kod EAN | 5904295006332 |
