-
Koszyk jest pusty
-
x
-
Koszyk jest pusty
-
x
-
Wpisz KOD: PROMO - 10% Radaway Essenza New Black DWJS drzwi prysznicowe 70,5 cm lewe czarny mat/szkło przezroczyste 1385032-54-01L
| Cena przesyłki | 0 |
| Dostępność |
do tygodnia
|
| Kod kreskowy | |
| EAN |
Zamówienie telefoniczne: 783433733
| Zostaw telefon |
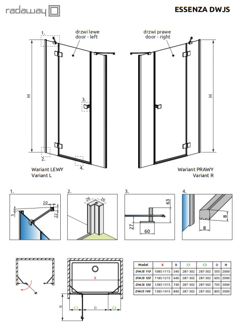
- wariant: lewy
- szerokość X (kompletnego zestawu): 130 cm (128,5-131,5 cm)
- szerokość D: 70,5 cm
- wysokość: 200 cm
- szkło bezpieczne, hartowane o grubości 6 mm
- system mocowania do ściany za pomocą profili umożliwiających niwelację krzywizny ściany
- zawiasy zostały zlicowane z taflą szkła (jednolita powierzchnia ułatwia czyszczenie drzwi)
- mechanizm unoszenia oraz opuszczania drzwi: zapobiega niszczeniu uszczelki i gwarantuje cichą i bezawaryjną pracę
- listwa magnetyczna zapewnia szczelność kabiny
- elastomerowe uszczelki odporne są na zmianę temperatury i wilgotności
- montaż zarówno na brodziku, jak i na podłodze
- możliwość montażu bez listwy progowej
- powłoka Easy Clean zmniejsza ilość zanieczyszczeń oraz ułatwia ich usunięcie
- kolor profili: czarny mat
- kolor szkła: przezroczyste
Zdjęcie przedstawia kompletne rozwiązanie.
Cena dotyczy samych drzwi, ścianki należy zakupić oddzielnie.
| Marka | Radaway |
| Seria | Essenza New Black DWJS |
| Szerokość | 70.5 cm |
| Wysokość | 200 cm |
| Rodzaj | do wnęki, do ścianki bocznej |
| Typ | uchylne |
| Wypełnienie | szkło przezroczyste |
| Powłoka ochronna | tak |
| Kolor profili | czarny |
| Wykończenie profili | mat |
| Mocowanie | lewe |
| Kod EAN | 5904295007452 |
